Профиль
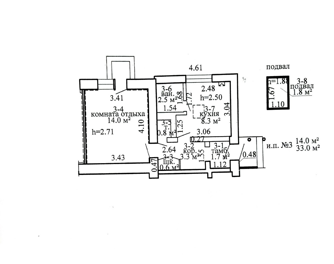
Право заключения договора аренды (на 3 года) нежилого изолированного помещения арендуемой площадью 33,0 м.кв., расположенного по ул. Карла Маркса, 10-3 в г. Витебске.

Начальная цена
165,25BYN
Cоглашение о правах, обязанностях и ответственности сторон
Соглашение(1).pdf
Описание
Изолированное помещение на 1 этаже 1-этажного шлакобетонного адм.-хоз. здания с жилым помещением Электроснабжение - есть, имеется прибор технического учета расхода электроэнергии, возможна установка арендатором индивидуального прибора учета за счет собств... Подробнее
Местонахождение
ул. Карла Маркса, 10-3 в г. Витебске
Извещение опубликовано
au.nca.by (Госкомимущество); vitebsk-region.gov.by (Витебский облисполком), vitebsk.gov.by (Витебский горисполком)
Начальная цена
165,25BYN
Cоглашение о правах, обязанностях и ответственности сторон
Соглашение(1).pdf